WELLNESS &
DAY-SPA
HOTELLERIE &
GASTRONOMIE
HEALTH &
FITNESS
OTHER
PROJECTS
PRIVATE
HOME
Wellverde schafft für Ihre Fitness und Ihr Wohlbefinden Räume in denen Sie aktiv Ihre Lebensqualität steigern, oder einfach nur Relaxen und sich Wohlfühlen können. Durch unsere langjährige Erfahrung und unter Einbindung von Experten aus dem Health & Fitness Bereich, können wir Ihnen einen Ort Schaffen, der positiv Emotional zum Verweilen begeistert und ein weiterer Baustein für Ihre Balance ist.Ob Fitnesskette, Individualisten, Medical-SPA oder Physiotherapie, Wellverde realisiert Ihre Wünsche.
Check-in Bereich
Fit in Karlsruhe
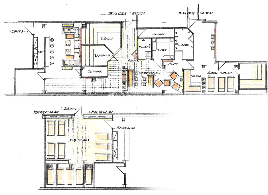
2D Planung
Fit in Karlsruhe
Sauna-Landschaft mit Kneippbereich
Fit in Karlsruhe
1 - 3
<
>
<< zurück
© WELLVERDE GMBH 2014
IMPRESSUM